前海金融中心(前海金融中心售楼处)首页网站-前海金融中心营销中心-前海金融中心欢迎您-楼盘详情-最新测评-户型图-容积率@售楼处电话
🏸➢➢前海金融中心
🏸➢➢前海金融中心售楼处电话☎:400-883-1335【售楼处已认证】✨✨
🏸➢➢前海金融中心售楼中心电话☎:400-883-1335【售楼中心已认证】✨✨
🏸➢➢前海金融中心营销中心电话☎::400-883-1335【营销中心已认证】✨✨
🏸➢➢楼盘基本信息介绍,地址,户型,价格,位置,医疗教育,商业交通配套
✅本项目暂不接受临时到访,过来参观样板房请记得提前来电预约!✨✨
✅为您安排楼盘现场销售全程接待并讲解,给您更贴心的看房体验!✨✨

🌊前海首排 全球商务力
展开全文
💎建面约530-1700平
💎唯一拥有永久无遮挡一线海景在售写字楼
💼现楼发售 即买即用 进驻湾区核心CBD

项目基础信息💎
项目地址:深圳市南山区前海临海大道与桂湾三路交汇处
开发商:恒裕集团
项目总占地:约2.39万㎡
项目总建面:约29万㎡
容积率:8.426
推售产品:T2栋写字楼,530㎡起/套(办公套数66套,商业办公8套)
物业:世邦魏理仕
入伙时间:即买即入伙

T2写字楼基本数据
建筑面积:约3.98万㎡
建筑高度:约186m
层数:37层
分区:5-16层低区;18-26层中区;27-37层高区(7/17/28层为避难层)
幕墙:双银中空超白LOW-E玻璃幕墙
大堂高度:约16m
标准层面积:约1700㎡
标准层层高/净高:4.5m/3.3m
网络地板:120mm
产权年限:40年(2015-2055)
中央空调:24小时
电梯:奥的斯电梯13部
VIP电梯:1部
VIP洗手间:2间
停车位:571个
管理费:24元/㎡/月
销售户型:530-951-1700-3400平米
商业2栋3栋(整层起售)
2栋1至4楼,约3500平
3栋1至3楼,约1000平

标准层平面图💎
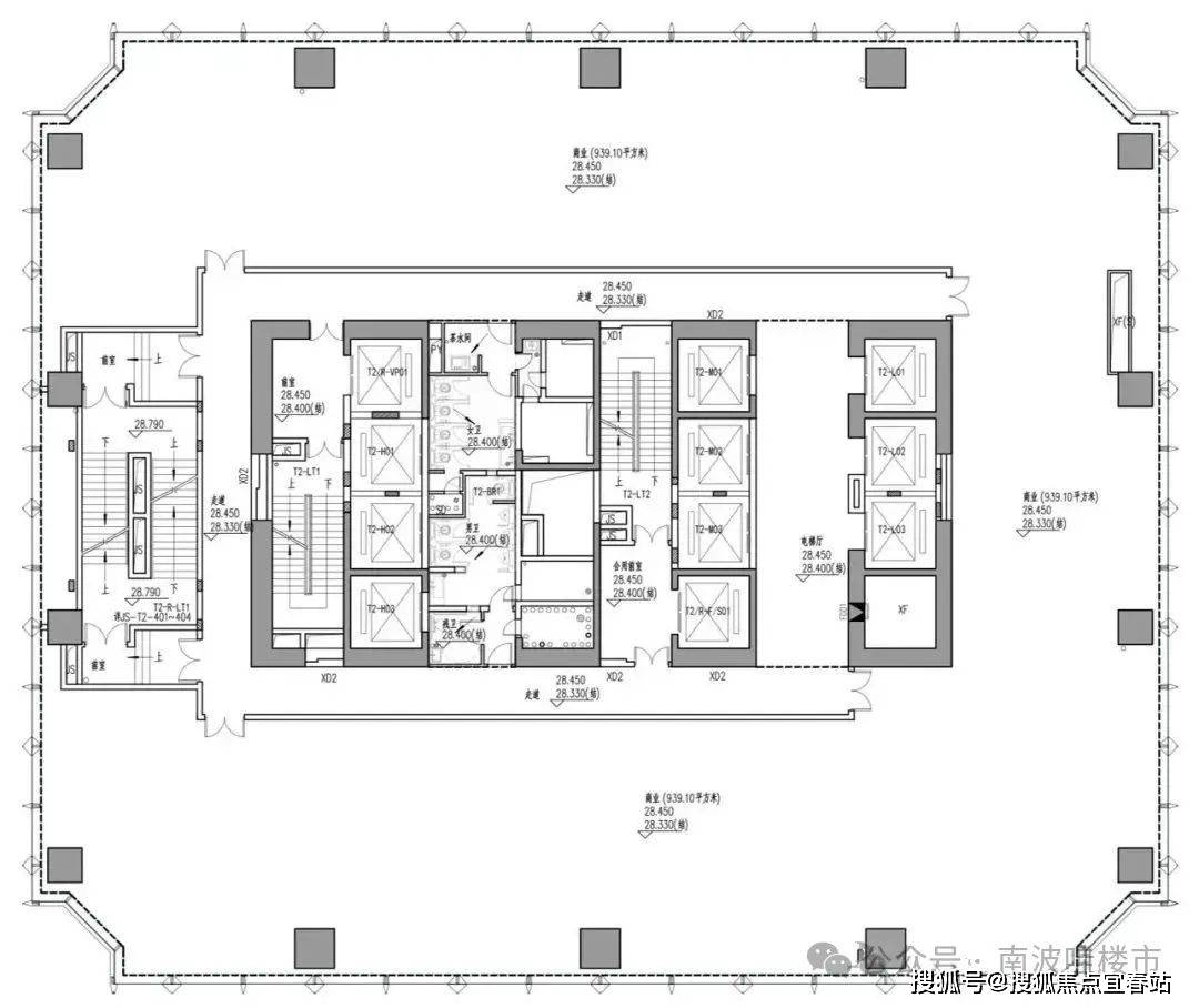
💡低区(6F)平面图

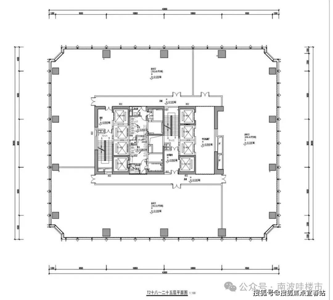
中区(22F)平面图

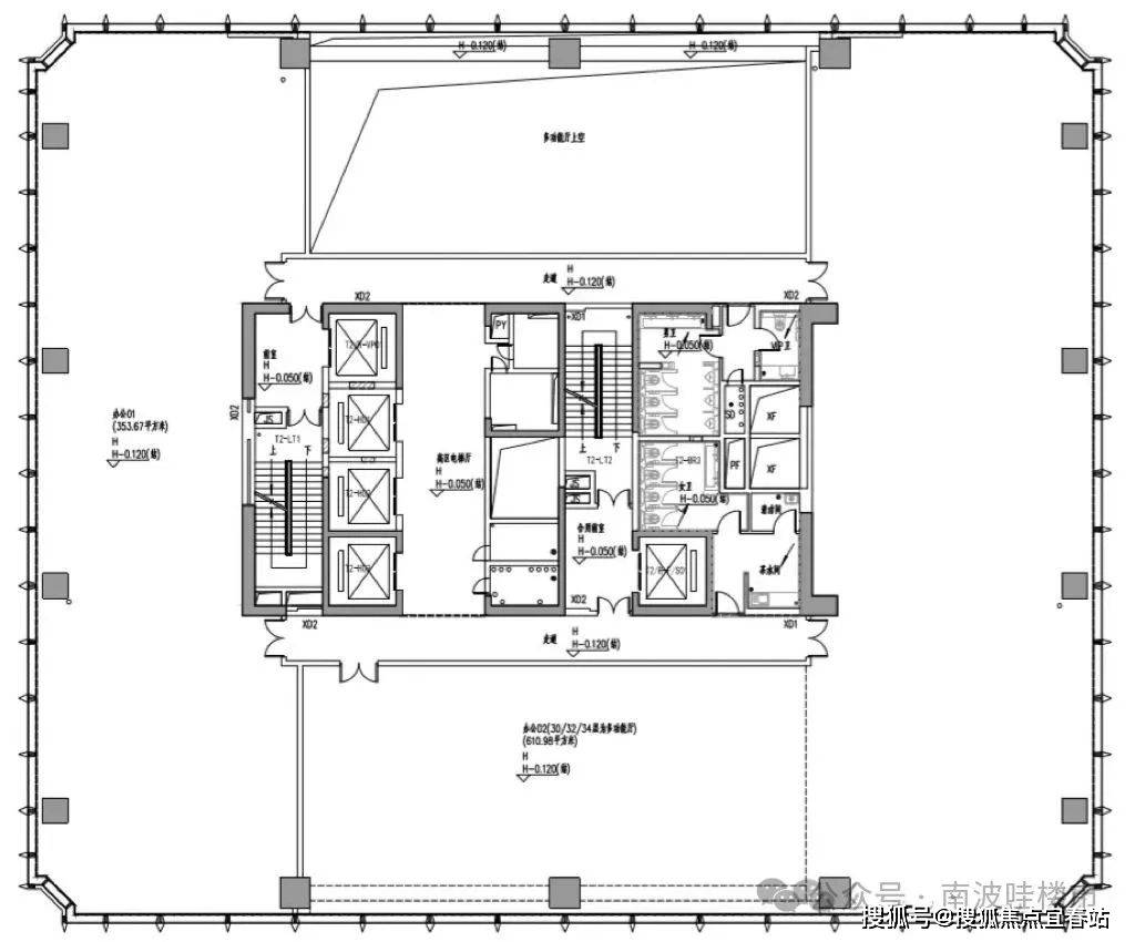
高区平面图(挑高部分层高9米,奇偶层挑高部分对称)

项目价值点
1⃣️湾区核心 - 前海作为国家级战略的双重核心引擎,特区中的特区。享最高级别的政策支持,双15%税收优惠,助揽全球顶尖企业和人才,启幕世界级金融中心。
2⃣️绝佳景观 - 前海桂湾首排,唯一拥有永久无遮挡一线海景的在售写字楼;汇聚前海石公园、前海国际金融交流中心、剧院等城市客厅超级规划,尽享T型中轴公园生态体验。
3⃣️交通优势 - 背靠亚洲在建最大综合交通枢纽,集聚4D“海、陆、空、铁”交通网络,将是珠三角最高效核心枢纽,成为整个南中国的效率高地,构建1小时国际生活圈,分秒联通世界。
4⃣️集中供冷 -前海独有,世界最大区域集中供冷系统,更为节能高效。
5⃣️品牌开发商 - 恒裕集团集30余载发展与沉淀,秉承“匠心·筑经典”的开发理念,为前海打造新地标。
6⃣️大师荟萃 - 集萃全球大师团队智慧,TFP\SWA\伍兹贝格\SLD\CCD\贝尔高林\ARUP\TKLC\迈进,再造世界地标。
7⃣️国际物业 - 专供国际巅峰人士,16米超高大堂、4.5米阔境层高(局部9米)、2.6米超大幅宽玻璃幕墙、最快7米/秒奥的斯电梯、VIP专属直达电梯、VIP总裁盥洗室,为总裁量身打造,满足商务会客与办公休闲,国际巅峰礼遇。
8⃣️绿色地标 - LEED金级和国际绿色三星双重认证,构建世界级绿色建筑标杆。
9⃣️国际物管 - 百年全球行业经验,财富500强的商业房地产服务公司——世邦魏理仕,担纲全程物管服务,以全面化的优质综合服务平台、前沿的智慧管理系统,为项目提供与时俱进的尊崇服务,为物业的持续增值保驾护航。
1⃣️0⃣️实景现楼 - 一手现楼,即买即用,品质交付。即刻执掌前海资产高地。

项目配套💎
1⃣️珍膳坊:位于T2栋写字楼4层,中国团餐十佳品牌,20余年团餐管理经验,全国团餐企业排名TOP3,深受企业、员工、政府监管部门的一致好评,将为区域带来全新商务团餐体验。

2⃣️Manner咖啡:位于T1栋写字楼大堂,其咖啡坚持产地严选,从源头把控咖啡豆的品质,香味浓郁独特。未来于此,静品咖啡,悦享商务休闲之乐。

3⃣️Luckin Coffee瑞幸咖啡:咖啡好味,生豆八分,瑞幸咖啡豆连续三年获得IIAC国际咖啡品鉴大赛金奖。拼配团队由WBC世界冠军组成,通过独特配比充分展现咖啡豆特色,为您奉上一杯最佳风味大师咖啡。

京喜便利店:位于T2栋底商,全新业态优选便利店,致献独特消费体验。以与众不同的商品与专业贴心的服务,传递国际化的服务风情。

5⃣️潮流健身会所:位于国金汇4楼,配备高端健身设施与专业化服务,畅享顶级的运动体验。上班运动无缝衔接,酣畅淋漓挥洒汗水,舒缓每日的疲惫。

6⃣️高效商务出行:项目地下车库设有前海地下道路出入口,接驳前海地下道路,实现地库车辆快速进出,提高商务出行效率。

7⃣️私享场地预约:位于T1栋39层,云端多功能厅、商务会议室、总裁会议室,私享预约使用。

8⃣️专属通勤巴士:安排专属职员接驳巴士,满足入驻公司员工的通勤需求

区域规划图


✨✨免责声明✨✨
1、文章图片来源于微信搜索或百度搜索引擎,我方非相关图片的原创作者,也不对相关图片及内容享有任何权利。
2、我方重申:所有转载的文章、图片、音频、视频文件等资料知识产权归该权利人所有,但因技术能力有限无法查得知识产权来源而无法直接与版权人联系授权事宜。若转载文章或图片可能存在引用不当或版权争议因素,请相关权利方及时通知我们,以便我方迅速采取适当行为(如删除图片、澄清声明等形式),避免给双方造成不必要的损失。
3、本宣传资料对项目周边幼儿园、学校等教育资源的介绍旨在提供相关信息,并不意味着我方对就学安排作出承诺。教育资源的名称、办学性质、办学规模、学位设置、开学(班)时间、招生条件、收费标准及招生区域存在调整的可能,应以政府教育主管部门及办学方颁布的政策规定为准。
4、文章中文字和图片之间无必然联系,仅供读者参考。




评论